Réseau Inter-notaires de transactions immobilières

 

Code postal

 

Numéro de l'Etude

 

Type de bien
Type d'offres

Nombre de pièces

 

pxVente

 

Date



Réf. : 25017-1638
Type : Terrain à Bâtir
Lieu : Doubs (25)

Lotissement, 27 parcelles à L'HOPITAL DU GROSBOIS

Prix : 60 610 €

 Voir la fiche complète
 Centrer sur la carte

Terrain à Bâtir - Lotissement, 27 parcelles à L'HOPITAL DU GROSBOIS
Référence : 25017-1638

 
Type : Terrain à Bâtir
Situation : Doubs (25)
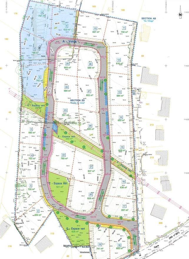
Dans la commune de L'hôpital du Grosbois, charmant village situé à 6 min de MAMIROLLES et 10 min de VALDAHON, dans un environnement calme, et verdoyant. Lotissement composé de 27 parcelles à bâtir non viabilisées comprises entre 551 m² et 838 m².  Parcelles vendues 110 ? / m².  Pour plus de renseignements, merci de contacter l'étude notariale.  Les informations sur les risques auxquels ce bien est exposé sont disponibles sur le site Géorisques : www. georisques.gouv.fr

Prix : 60 610 €
Honoraires de négociation inclus , sauf indication contraire : 0 € TTC



 Fermer

 Demande de renseignements
Imprimer


   Résultat de recherche : 491 bien(s) disponible(s)  1   2   3   4   5   6   7   8    |  Affichage en mode simple
PROPRIETE DE 175 M² sur 1 hectare de terrain avec vue imprenable

    Doubs (25)

Prix : 429 000 €
Appartement T3 avec spacieux jardin, garage et cave

    Doubs (25)

Prix : 240 000 €
Maison mitoyenne en partie rénovée

    Doubs (25)

Prix : 69 000 €
TERRAIN A BATIR DE 830 M² - BRANNE

    Doubs (25)

Prix : 24 000 €
IMMEUBLE BAUME LES DAMES

    Doubs (25)

Prix : 170 000 €
Appartement T4 de 75 m²

    Doubs (25)

Prix : 103 000 €
Maison 3 chambres, sur sous-sol complet sur terrain 859 m²

    Doubs (25)

Prix : 159 600 €
Charquemont, maison 2005 4 chambres

    Doubs (25)
Charquemont

Prix : 350 000 €
   Résultat de recherche : 491 bien(s) disponible(s)  1   2   3   4   5   6   7   8    |  Affichage en mode simple